夫婦二人からファミリーまで対応でき、コストパフォーマンスにも優れた「25坪の平屋」がいま注目されています。25坪という広さなら、希望に合わせた2LDKや3LDKの平屋間取りを実現可能です。
そこでこの記事では、25坪の平屋間取り成功例を、タイプ別に11選紹介します。25坪の平屋間取りが気になる人は、ぜひ参考にしてみてくださいね。
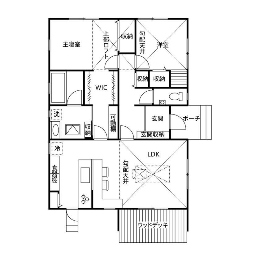
【老後向け】25坪の平屋間取り成功例
安心・安全を考えた快適な平屋|3LDK
画像出典:SUUMO
\地域密着型のハウスメーカーが見つかる/
| 価格目安 | 2,000万円~2,499万円 |
| 延床面積|坪数 | 80.32平方メートル|24.2坪 |
| 家族構成 | 2人 |
この住宅は、コンパクトなスペースに、家族が快適に過ごせる工夫を詰め込んだ3LDKの平屋です。老後の生活を考慮し、LDKを起点に各部屋へ直接アクセスできる廊下のない間取りを採用。
無駄な移動を省いたシンプルな動線が、毎日の家事負担を軽減します。リビング南側のウッドデッキは、内と外を繋ぎ開放感を確保。主寝室のほか、趣味や収納に使える個室もしっかり備え、自分らしい家づくりと豊かな暮らしを叶える一棟です。
\プロに無料で意見が聞ける/
【3LDK】25坪の平屋間取り成功例2選
家族とのコミュニケーションを重視した平屋|3LDK
画像出典:SUUMO
| 価格目安 | 1,380万円 |
| 延床面積|坪数 | 80.32平方メートル|24.2坪 |
| 家族構成 | 2人~4人 |
この住宅は、コンパクトなプランの中に、夫婦と子どもがのびのび暮らせる3LDKの間取りを実現しています。最大の特徴は、家族の団らんを生む広々としたLDK。キッチン周りにゆとりを持たせた設計により、子どもと一緒に料理を楽しめる空間を確保しています。
各部屋への移動がスムーズなワンフロアの動線は、家事の負担を減らし、日々の生活にゆとりを創出。シューズインクロークなど必要十分な収納を備えつつ、コストを抑えた賢い家づくりを実現。無理なく快適なリビングライフを送りたい子育て世代にとって、まさに理想の平屋と言えます。
\プロの中立的な意見が無料&営業電話なし!/
効率的な動線+庭を楽しめる間取りの平屋|3LDK
画像出典:SUUMO
| 価格目安 | 1,500万円~1,999万円 |
| 延床面積|坪数 | 85.25平方メートル|25.7坪 |
| 家族構成 | 2人~ |
デザイン性の高さで定評のあるこの住宅は、機能美と快適性を両立させた平屋です。LDKを中心とした回遊性のある間取りは、行き止まりのないスムーズな家事動線を実現し、毎日の生活負担を大幅に軽減します。
コンパクトながらも、天井高を活かした設計で開放的な空間を創出。リビングに隣接する部屋や、適材適所に配置された収納により、必要なモノがすぐに手に取れる、片付けやすい住まいになっています。
長く愛せる普遍的なデザインと、家族の変化に合わせて柔軟に対応できる3LDKなどのプランは、おしゃれな家づくりを目指す方に最適です。

【2LDK】25坪の平屋間取り成功例2選
①ガレージ付きで快適性が高い平屋|2LDK
画像出典:SUUMO
| 価格目安 | 1,380万円 |
| 延床面積|坪数 | 80.32平方メートル|24.2坪 |
| 家族構成 | 2人~4人 |
この住宅は、憧れのビルトインガレージを備え、趣味と暮らしを両立させた平屋です。コンパクトな設計ながら、ガレージ空間を建物内に取り込むことで、雨の日でも快適な移動動線を実現。
LDKは勾配天井によって縦の広がりを持たせ、実際の面積以上に開放的なリビングになっています。家事効率を考慮したシンプルな間取りと、生活に必要な適材適所の収納計画により、すっきりと片付いたプランが可能に。コストを抑えつつ、自分らしいこだわりを詰め込んだ家づくりの好例です。
②季節を楽しめる開放感のある平屋|2LDK
画像出典:SUUMO|クレバリーホーム
| 価格目安 | 2,500万円~2,999万円 |
| 延床面積|坪数 | 85.50平方メートル|25.8坪 |
| 家族構成 | 2人~3人 |
この住宅は、窓辺から四季の移ろいを感じられる、豊かな感性に満ちた平屋です。2LDKというコンパクトなサイズながら、LDKを広く確保したオープンな間取りで、カフェのようにくつろげるリビングを実現しています。
家づくりのこだわりは、趣味を楽しめる土間や書斎など、趣味の時間を大切にするプランニング。家事動線も考えられており、ウォークインクローゼットなどの収納を適所に配置することで、すっきりとした住まいを保てます。
採光や通風に優れた建築デザインと高い性能が融合し、注文住宅ならではの自分らしい快適な暮らしを叶える一棟です。
【縦長タイプ】25坪の平屋間取り成功例2選
①景色を楽しむことに特化した縦長平屋|3LDK
画像出典:SUUMO
| 価格目安 | 2,500万円~2,999万円 |
| 延床面積|坪数 | 85.50平方メートル|25.8坪 |
| 家族構成 | 2人~3人 |
ロケーションを活かすために、非日常な住まいを実現した平屋です。LDKからウッドデッキ、そして外へと視線が抜ける設計により、実際の面積以上の開放感を実現。
リビングは家族が自然と集まる、まるでリゾートホテルのような心地よさです。間取りは、部屋数を確保した3LDKで、回遊性のある動線がスムーズな生活をサポート。
高気密・高断熱の高性能な住宅性能も備え、デザインだけでなく一年中快適なプランを提供しています。景色と調和する外観と無垢材の温もりが融合した、こだわり満載の家づくりです。
②統一感のあるコの字な縦長平屋|3LDK
画像出典:SUUMO
| 価格目安 | 2,860万円 |
| 延床面積|坪数 | 86.18平方メートル|26坪 |
| 家族構成 | 2人~3人 |
この住宅は、中庭を囲む「コの字型」の間取りを採用し、プライバシーと開放感を両立させた縦長の平屋です。外からの視線を遮りつつ、LDKや各居室が中庭に向かって開かれる設計に。カーテンのいらないのびのびとした暮らしを実現しています。
リビングの大開口窓からは、柔らかな光が入り、洗練された空間を演出します。コンパクトなサイズながら、中庭を活用して視覚的な広がりを持たせ、家族の気配を感じられる動線と必要な部屋数を確保。
デザインと機能性が融合した、これからの家づくりの参考になる住まいです。プランの工夫次第で、土地の可能性を最大限に引き出せることを教えてくれます。
25坪以下の平屋間取り成功例
快適な動線をコンパクトにまとめた平屋|2LDK|21坪
画像出典:SUUMO
| 価格目安 | 1,500万円~1,999万円 |
| 延床面積|坪数 | 71.21平方メートル|21.5坪 |
| 家族構成 | 2人 |
夫婦とペットが快適に暮らせる、西海岸テイストの平屋です。土地の形状を活かし、コンパクトな広さの中に、家族全員が楽しく過ごせるプランを設計しています。
カバードポーチが目を引く外観同様、間取り図もこだわり満載。LDKは勾配天井で高さを確保し、実面積以上の開放的な空間を演出しています。
間取りのポイントは、キッチンを中心に水回りを回遊できるスムーズな動線。家事の効率化はもちろん、ペットが走り回れるルートとしても機能します。必要な場所に適切な収納を設け、部屋を広く使えるよう検討されたこの住宅は、デザインと実用性を兼ね備えた、若い世代の家づくりの手本となる一棟です。
【3LDK|南玄関】25坪の平屋間取り成功例
プライベートエリアのことを考えられた南玄関の平屋|3LDK
画像出典:SUUMO
| 価格目安 | ー |
| 延床面積|坪数 | 88.60平方メートル|26.8坪 |
| 家族構成 | 2人 |
この住まいは、夫婦の理想を叶えたおしゃれな平屋の実例です。間取りの特徴は、建物をコの字型にし、LDKを家の中心に配置した3LDKのプラン。どの部屋へ行くにもリビングを通る動線が、家族の自然な会話を生み出します。
玄関からテラス、リビングへと繋がる回遊性は、移動をスムーズにするだけでなく、内と外が一体となった開放的な空間を演出。
吹き抜けや多灯照明で彩られた快適なリビングに加え、寝室などのプライベートエリアや大型の納戸もしっかり収納。将来を見据えた機能的な家づくりは、長く愛せる拠点を求める方にとって大きなヒントになります。
【2LDK|南玄関】25坪の平屋間取り成功例
リビングを中心に効率的な動線を描いた平屋|2LDK
画像出典:SUUMO
| 価格目安 | 2,500万円~2,999万円 |
| 延床面積|坪数 | 86.53平方メートル|26.1坪 |
| 家族構成 | 2人 |
この住宅は、夫婦が心地よく過ごすために家づくりを検討し、建て替えによって実現した平屋です。このサイズ感ながら、LDKを中心とした開放的な空間構成により、ゆとりのある暮らしを叶えています。
間取りのポイントは、玄関横の大型収納や、キッチン脇のパントリーなど、適材適所に配置された収納計画。これにより、モデルルームのようにスッキリとした部屋を維持できます。
リビングとフラットに繋がるウッドデッキは、家族の楽しみを広げるプランとして機能。将来のメンテナンスにも配慮したタイル貼りの外壁など、長く安心して住める工夫が凝縮された住まいです。確保された動線や機能的な建築デザインは、セカンドライフの参考になります。
【4LDK】25坪の平屋間取り成功例
おしゃれな南欧風の平屋|4LDK
画像出典:SUUMO
| 価格目安 | 2,500万円~2,999万円 |
| 延床面積|坪数 | 87.36平方メートル|26.4坪 |
| 家族構成 | 3人~4人 |
この住宅は、コンパクトな広さながら、家族3人~が豊かに暮らせる4LDKの平屋です。
LDKは勾配天井によって縦の開放感を演出し、実際の坪数以上のゆとりある空間を創出。間取りには、モデルハウスを参考にしたアーチ型の廊下や、ホテルのようなピアノルームなど、理想の部屋作りへのこだわりが詰まっています。
床材には「音響熟成木材」を使用し、素足でも心地よい快適な暮らしをプランニング。限られたスペースを有効活用しながら、生活動線とデザイン性を両立させた、おしゃれで機能的な住まいです。
最高の間取り・納得の価格で
手にする方法!
理想の平屋づくりの
カタログ一括請求ならコチラ
ワンフロアで完結するスムーズな動線や、開放感あふれる高い天井。そんな平屋の魅力を最大限に引き出すには、複数社の提案を比較することが大切です。
LIFULL HOME’Sなら、平屋建築に強い会社のカタログをまとめて取り寄せ。理想の住まいを見つけましょう。

- 平屋ならではのおしゃれな外観や間取りの実例をもっと見たい!
- 家づくりを始めたばかりで、どの会社が平屋に強いのか分からない…
- 住宅展示場に行く前に、予算に合う会社を効率よく絞り込みたい!
\ カタログ請求無料、簡単3ステップ /
住宅カタログ・資料の無料一括請求はコチラから
25坪の平屋を作るときにおすすめの「無料サービス」4選

50坪のおしゃれな平屋を作るのなら、まずは情報収集が重要です。そのため、「無料の資料請求サービス」を利用するのがおすすめです。
| サービス名 | 掲載数 | 累計利用者数or査定数 | 特典 |
|---|---|---|---|
| SUUMO注文住宅 公式サイト | 約250社 | 非公開 | ー |
| タウンライフ家づくり 公式サイト | 約1,100社 | 約40万人 | ・「成功する家づくり7つの法則」プレゼント ・無料間取り作成 |
| HOME4U【家づくりのとびら】 公式サイト | 約120社 | 約50万件 | ・Amazonカード30,000円プレゼント(契約・着工・アンケート回答) |
| LIFULL HOME’S(ライフルホームズ) 公式サイト | 約650社 | 非公開 | 「はじめての家づくりノート」プレゼント |
当サイトでおすすめなのは以下のサービスです。
・リクルート+信頼度重視なら
>>SUUMO注文住宅(公式サイト)
・Amazonカード3万円+プロの意見を直接聞くなら
>>HOME4U【家づくりのとびら】(公式サイト)
・東証プライム上場企業+幅広い会社を比較したいなら
>>LIFULL HOME’S(ライフルホームズ)
・たくさんの会社から比較したいのなら
>>タウンライフ家づくり(公式サイト)
25坪の平屋間取りの価格は?

25坪前後の平屋を建てる場合、建築費用の相場は本体価格で1,500万円~3,000万円程度が目安となります。これを坪単価に換算するとおおよそ60万円~80万円ほどです。
価格は、依頼する施工会社が、ローコストメーカーか大手ハウスメーカーかなど、条件によって大きく変動します。このサイズ感(25坪)は、必要な空間を確保しつつ費用を抑えやすいため、コストパフォーマンスを重視した家づくりにおいて人気があります。
間取りを工夫することで、さらにコストをコントロールすることも可能です。例えば、LDKを中心にして廊下を減らしたり、住宅の形状を凹凸の少ないシンプルな形にしたりすることで、材料費や工事費を削減できます。
一方で、住まいの快適性を高めるために断熱性能や内装材にこだわれば、その分費用は上がります。自分たちの暮らしにどこまでお金をかけるか、バランス感覚が重要です。
また、資金計画を立てる際は、建物本体だけでなく、土地の購入費や屋外給排水工事などの付帯工事費、諸経費も忘れずに組み込む必要があります。25坪という限られた面積の中で、予算を賢く配分し、理想の平屋を実現しましょう。
25坪の平屋間取りでよくあるFAQ
- 25坪の平屋は小さいですか?
-
25坪でも、2~3人がゆとりをもって暮らせる平屋を作れます。実例でも、3LDKを確保しつつ、勾配天井や廊下を減らす工夫で広がりを感じさせる住まいがあります。決して小さすぎることはなく、工夫次第でリビングを中心に家族が顔を合わせやすい、まとまりのある快適な空間を作ることが可能です。
- 平屋の間取り25坪の金額は?
-
依頼先や仕様によりますが、本体価格1,400万円~3,000万円というケースが見られます。ローコストメーカーであれば1,000万円台後半で建てられる場合もあり、幅広い選択肢があります。
- 平屋25坪で何人家族が住める?
-
実例では「夫婦2人」や「夫婦+子供」という構成が多く、2~3人でゆったり暮らすのに適したサイズ感です。3LDK~4LDKの間取りも可能なため、4人家族で住める平屋もあります。
- 平屋はやめたほうがいいですか?
-
広い敷地が必要になる点は注意が必要ですが、階段がないため掃除や洗濯動線が非常に楽で、老後も安心して暮らせるという大きなメリットがあります。実際に平屋に住む人の意見でも、「将来の生活のしやすさ」や「家族の距離感」を理由に選んでおり、長く住む家として満足度は高い傾向にあります。
25坪の平屋間取りに関連した記事
-
18坪の平屋間取り例7選!2LDK・価格なども紹介【2026年】
-



28坪のおしゃれ平屋間取り実例7選!4LDK・3LDK・価格も紹介【2026年】
-



15坪の平屋間取り8選!2LDK・ロフト・価格も紹介【2026】
-



35坪の平屋の間取りプラン9選!4LDK・3LDK・南玄関も紹介【2026】
-



40坪の平屋の間取り9選!中庭・4LDKタイプなども紹介【2026】
-



25坪の平屋間取り成功例11選!3LDK・2LDK・縦長も紹介【2026年】
-



20坪のおしゃれな平屋の間取り10選!老後向や1・2LDKも紹介【2026】
-



【2026】50坪のおしゃれな平屋間取り10選!建築のポイントも紹介
-
おすすめ間取り情報


30坪のおしゃれな平屋間取り10選!かっこいいスタイルも紹介【2026年】























